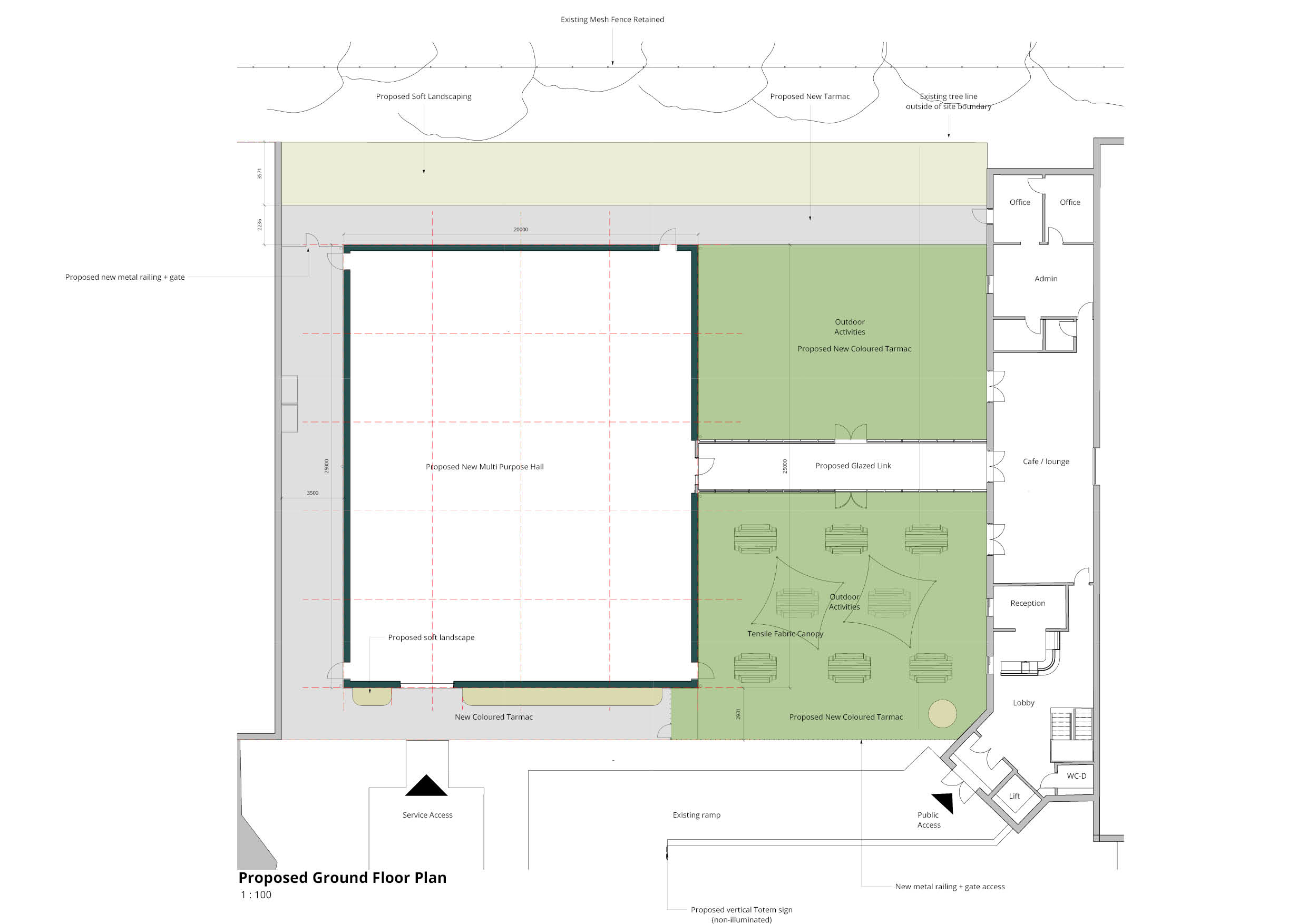
NAYC Multi Purpose Hall Planning Approval 02 | NAYC Kings Park Multi-Purpose Hall – Planning Go Ahead